2010 The New Maribor Art Gallery (UGM) International, public, anonymous, single-stage architectural ideas competition for the new Art Gallery in the city of Maribor/Slovenia _Individual participation European capital of culture – DRAVA RIVER 2012
The subject of the Competition The Maribor Art Gallery – UGM is the central museum-gallery institution for visual art in north-eastern Slovenia and it is the second largest institution of its kind in Slovenia. With the Competition for the New UGMaribor takes on the role of European Capital of Culture, the UGM and Municipality of Maribor wish to acquire the solution for a complex, which shall be a modern and attractive cultural center, an accelerator of the urban pulse, the engine of urban regeneration in the south-western part of the city center at the Drava bank, and a model case of sustainable architectural design. The new building will host a review collection of Slovene modern and contemporary visual art, enable the users to present various types of visual art in an interesting, exploratory, and educational way, and offer a wide program for children, youth and families, with an attractive set of leisure activities. The architectural outline solution of the New UGM consists of the central gallery activities area occupying 8.000 m2, the Children’s Museum (700 m2), the Creative industrial center (1.200m2), the Architectural center (500 m2), the gallery catering area (650 m2), open outdoor spaces (1.500 m2), and an underground garage for 500 vehicles.
PROPOSAL FOR THE NEW MARIBOR ART GALLERY (NEW UGM)
The idea of the proposal is to reproduce the pattern of the old historical town of Maribor in the scale of the building area of the New UGM. This idea originated from our ‘reading’ of Maribor’s old town through maps and texts. We have studied its topography and morphology; its position relative to the river; the organization of the space and its structuring around two main axes (the cardo and documents of the Roman period) and secondary ones; the compact urban texture, composed by building units and two main public spaces. Our proposal is based on these particular morphological elements that have informed our design principles. The main design principles. The plan of the old town surrounded by the ramparts is translated into the plan of the building complex of the New UGM and shapes its outline. The two main, as well as secondary axes of the town, are reproduced within the building complex as axes of movement and organization of its functional units. The two main public spaces of the town are translated into the two main public spaces – interior squares of the building complex meant to gather the public (the City’s Living Room, Multipurpose Space in the Children’s Museum). The building units of the town, organized around the axes, have been reproduced in the spatial and functional units of the building complex. The inner yards and the small open spaces of the town’s building units correspond to the interior openings that start from the roof and vertically traverse the whole building. Depending on their size and position at the different levels, these openings take several forms: green spaces, small internal patios, light towers, and info towers functioning as orientation landmarks for those acceding to the building. The organization of the movement There are three entrances to the building. The main access to the building is from the two entrances in the Southeast corner of the building; the third entrance from Ε Street (pedestrian) is located in the North and at a higher level. The movement of the visitors is organized on the two basic axes of the building from South to North and from East to West. These axes take the form of an inclined ramp that traverses the full length of the building. The section of these two axes is the center of the first main public space (City’s Living Room – Entrance Hall of the New UGM) which is the visitors’ meeting and gathering point after entering the building. It is also the hub from where access and connections to all other areas of the New UGM are provided. There is also a secondary path of movement which is situated at levels 1 and 2 and connects the different units of the building. Vertical movement takes place at four points, near the entrances of the building. The functionality of the complex. The organization of the complex follows the organizational scheme provided by the organizers of the competition. Hence, the New UGM, the children’s museum, and the catering area constitute the main building complex while the Architecture Centre and the Creativity Industry Centre form a second smaller complex. The two complexes are connected from the exterior through E street. More importantly, they are also directly connected from the interior through a bridge starting at the City’s Living Room and overlooking the Periodical exhibition area. The Permanent New UGM collection exhibition area has been placed at the upper level of the main complex. The main complex of the building unfolds in three distinctive areas, organized at various levels around the two main public spaces, which are interior squares. The first interior square (City’s Living Room) is located at the lower level and is surrounded by the New UGM at the same level and distinctive units (Library and Archive etc.) at the upper levels. The second interior square (Multipurpose Space) is located at the upper level and organized around it the premises of the Children’s Museum. The Catering Area is located between the two interior squares and has independent access from the exterior of the building. From the upper level of the Catering Area, one has access to the roof plan, from which one has a beautiful view of the river and old town while surrounded by the grove of light towers. Relation to the urban environment. The building has a symbolic relation to the town and refers to it in a very modern way. It reproduces the qualities of the old town’s public spaces, developed through centuries of history, modern design and materials, and expressive simplicity. Despite its multi-functionality, the complex maintains the unity of form and respects the scale of the city by keeping the height below the maximum allowed. Moreover, it is well-oriented and the light is introduced from above through light towers that bring air and light from the upper to the lower levels of the building. At night, these towers constitute luminous landmarks for those viewing the building from afar.
2007 Country houses in Skroponeri Evia. European architectural competition of Proteus SA.
Designers: Th. Fotiou, A. Moungolia, Th. Psykakos B. Lioliou, D. Samoureli . AWARD`








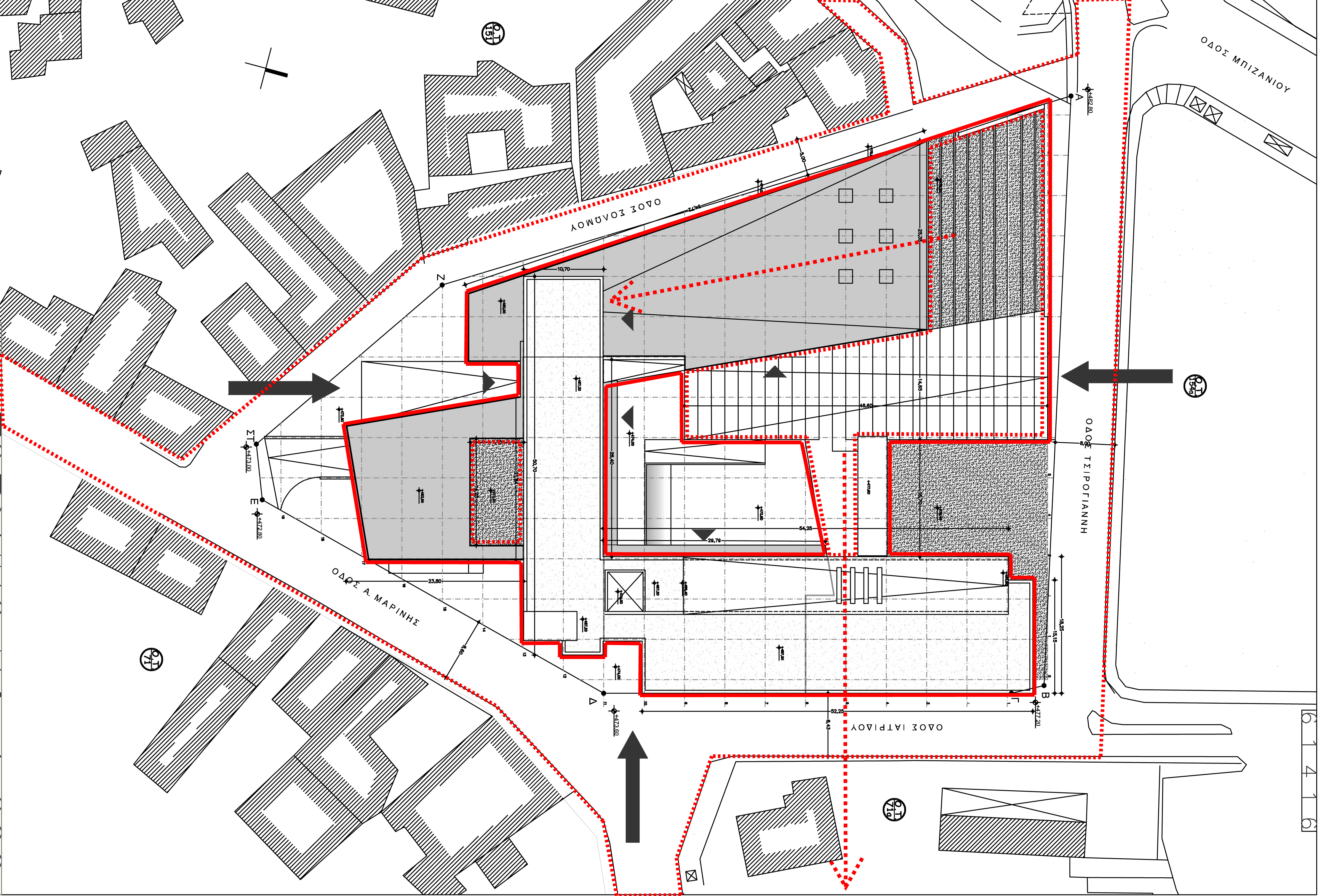
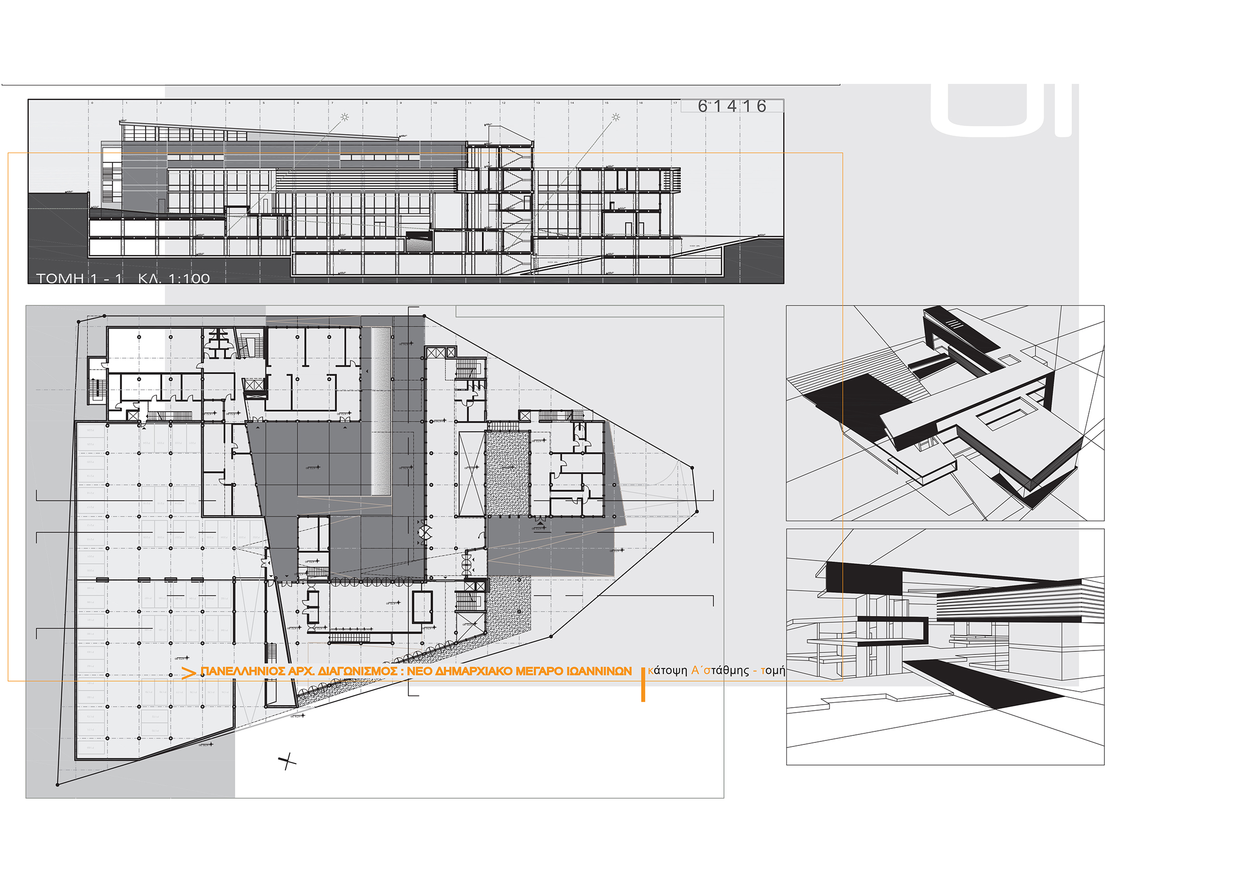
2006 New Town Hall of Ioannina Municipality. Nation-wide architectural competition.
Study Architects: Th. Psykakos and F. Daliani (3Dmodel colaboration with AIEN)
a. The object of the preliminary architectural study is the inclusion and design of the plot of the new Municipal Hall of Ioannina, which includes ten (10) individual synthetic units for the Municipality’s operational needs. The new center of operations around the services of the Municipality will be the core for the creation of a wider Public space according to the model of the modern perceptions of the public life of the citizens. From the scale of the intervention it is clear that it is not just about the installation of a new building, but about a substantial formation of the entire function of the City Hall and its various units in a single area of 5,990.00m2 and the integration of this whole into the urban fabric. The general directions resulting from the above are followed by the architectural preliminary study, in terms of the general distribution and location of functions and buildings. In particular, it promotes The concentration of services in the NE zone of the plot. The placement of the Town Hall in the South Zone of the plot in relation to the public areas. The creation of a green zone in the NW zone of the plot in continuity with the neighboring area under redevelopment. The creation of a new internal square in the center of the plot adjacent to the main traffic artery for the functions of services of the Departments and Offices. Which have a direct relationship with the outside municipal area. The Autonomous Departments and Offices as well as the Municipal Development Enterprise can operate independently. Each sector is divided into operating areas under modules as requested by the building program. The differentiation of the units was sought within the scope of the capabilities of service so that it either operates autonomously or operates in direct connection with other relevant sectors and participates in the overall organization at the level of the municipal hall. This is how the main staircase was placed as the main access to the entrance area to connect the Town Hall and Directorates and the second independent access that serves the various sectors. b. General description of the solution. Based on the above general principles, the solution was formulated as follows: The main building volume was placed in the NE and SW zone of the plot and is essentially divided into two wings that are developed at the height of the City Hall with the entrance areas lower and those of the services, so so that they have access from the open areas of the plot and operate independently. And in a third one which projects lower and integrates with the natural terrain. By placing the building in two + one wing, the unity of the building volume is maintained, leaving a significant free area of outdoor spaces in the center of the plot, in a continuous sequence between them at different levels. Which according to the study are green areas and activities. With the succession from the open to the closed space, a change is achieved in the experiential relationship of man with the natural, artificial environment. The entrance areas are located at the lowest level in the southern part of the plot and are the central access area to all the functional units and are an intermediate connecting area between the public areas and the areas related to the employees of the Municipal Building. The Town Hall was placed in the South zone of the plot and higher so that having double vertical access it can function either in relation to the body of the building or completely independently. The building of the Municipality Offices was placed on the NE border of the plot and in direct relation to the road so as to define with its volume the internal outdoor space of the Municipal Building but with two ground-floor accesses on two different levels so that access from the NE side and at the same time there should be a direct connection with the Spiritual Center. All the Directorates, despite their differences in operation, have the following common characteristics: The spaces are arranged by level and area in the NE wing of the complex. Due to the slope of the ground, the main entrance is at the level of the entrance areas level with the outside ground while the secondary entrance is at the level of the upper level through the access passage to the Spiritual Center. The offices are oriented towards the South and towards the East to ensure good climatic conditions and at the same time create an opening of the view towards the lake. The multi-purpose room is positioned so that there is direct access from the central entrance area to the ground floor and the semi-basement area with a perimeter foyer on two levels and access to the inner courtyard of the building. The sloping roof of this space is the natural functional continuation of the outdoor activity space open to the public space of the city. The atrium of the Town Hall is a second more private area that unifies and gives the right light to the spaces that develop around it. The parking spaces of the City Hall are developed in two independent parts of underground spaces and each part of them has two levels. The total number of parking spaces: is 226. The warehouses which serve a significant part of the needs of the Town Hall are located in the semi-basement with access along the connecting axis between the stairwells. The response to the functional program for a town hall whose organization and design should serve the citizen, allow the distinct reading and use of the functions, and create pleasant and comfortable spaces for all users was set from the beginning as the main objective of the proposed study. This pursuit sought an appropriate architectural environment with conditions that would give the building a character open to the public and the under-formation public space of the area and raised important issues to be resolved. Such as the free access and connection of the plot with the public space of the city, communication, and the transition from the open to the closed. The search and formatting of the architectural proposal capture and clearly express its position in the basic data of the subject such as the sloping ground of the building block, its particular shape and the orientation of the plot, and the complex building program where the modules are placed in a hierarchical and functional relationship between them.
MAIN CHOICES / CENTRAL IDEA/ 1. Placement of the spaces (entrance areas-town hall & services of the Municipality) in the south-eastern area of the plot, highlighting it as a pole of the composition & releasing the northwestern part of the plot from building masses. This has the effect of resulting in the creation of. a) A large free outdoor space in such a position that mediates between the open area of the public space under reconstruction in the city center. b) Of a space that penetrates to introduce free movement into the center of the composition in order to attract and channel public life to the interior of the city hall. 2. Configuration on the east & south side of the plot of a trunk with complex characters & functions. The main objectives of this provision are a. To delimit the City Hall-Services areas oriented toward the city center. b. To connect as a receptor in a transitional continuity the natural slope with the footpath-ramp thus contributing to its inclusion in the composition. c to complement and enhance outdoor open access possibilities to the center of the composition, i.e. placing the spaces in a continuous sequence. Taking advantage of the height difference between the NW and SE edge of the plot. d. to contribute to the creation of ground-level access entrances to the various functional units and to other elevated levels beyond those of the natural ground. e. to contribute to the active penetration of the public space within the architectural organization, placed opposite the city center and facing it. The main body of the building can thus have a direct connection in terms of visual and spatial perception with the public space of the city under regeneration. To be the field of reference where the surrounding synthetic members, structured and semi-outdoor, are articulated in its internal outdoor public space. To function with its enclosed form as a strong reference point of the relaxed urban landscape, without however its architectural presence as a building mass and configuration covering the entire plot, leaving large free spaces but at the same time expressing its complex dynamic functional essence. Taking advantage of the height difference of the plot so as to organize a lower area in the heart of the composition. It is an enclosed square that, while belonging to the single continuous network of outdoor spaces of the town hall, can also be defined as an autonomous relaxation area protected from the perimeter roads. Summing up, the central idea of the study refers to the essential activities and in various ways the entry of the public space into the organization of the town hall as the pre-eminent public building and the gradual meeting and assimilation of the individual functional units. This is achieved by the continuous gradation of the outdoor spaces of different characters and functions, arranged so as to adapt to the slope of the plot and referring directly to the trunk of a complex building in operation, creating an escalating intensity towards the functional goal of the building program which is also the compositional theme of the study.
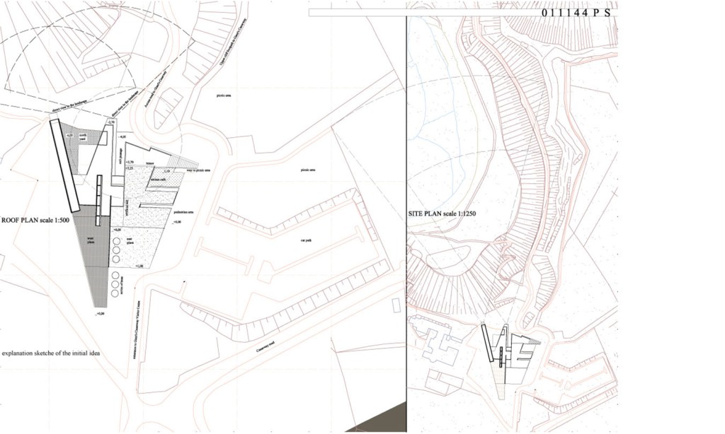
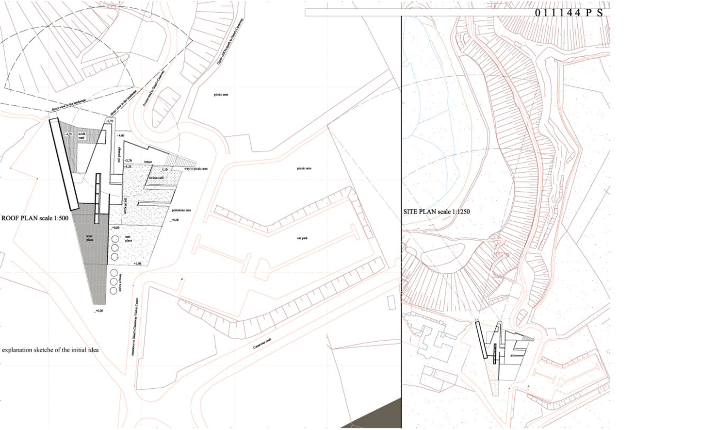
2005 Giant’s Causeway Visitor Centre International Competition for the Architecture, Landscaping, and Access of new Visitor Facilities at the Giant Causeway (Northern Ireland) August 2005, Individual participation
Report on design and approach to the project 1. The idea of the proposal has originated from the basic problem encountered by the organizers of the competition i.e. to control the impact of increasing visitation of the World Heritage Site on its physical integrity and public enjoyment. With respect to the maintenance of the physical integrity of the World Heritage Site our solution is a building of low height which minimizes the volume of its components, is based on softly inclined roofs that follow the slopes of the land, and is perfectly adjusted to physical constraints and environmental conditions of the site. Regarding public enjoyment, our proposal is based on two solutions. First, we have placed the visitor center right on one side of the development site, which is the edge of the cliff and the beginning of the route leading to the coast. Second, we have created a softly inclined building that favors the enjoyment of the landscape through walking from the external to the internal spaces of the building and vice versa. We have conceived the building as a space where visitors are initiated to the World Heritage Site not only mentally – through exhibitions, learning courses, and events – but also physically – through their viewing experience from different standpoints while walking around and inside the building. 2. Basic design principles: A) The volume and shape of the building fully respect the excavation constraints and its design is meant to bring minimal disruption to the unity of the landscape (low height, small volume, lines that follow the slopes of the surrounding land). B) The building is in form of a funnel on the South-North axis, which introduces the visitors coming from the South to a widening viewing experience of the landscape that gradually unfolds in front of their eyes towards the North. Internal and external spaces are harmoniously combined to offer the greatest variety of viewing experiences. C) The building is fully adapted to the climatic conditions of the area. The external yards and atrium are enclosed to protect visitors from the winds coming from the North, West, and North-West; while there are openings on the roofs to attract natural light from the East and South. D) The internal design allows for a smooth descent of the visitors – including disabled persons – from the upper to the lower levels of the building through inclined surfaces. It also facilitates their access and circulation in and out of all internal and external spaces by offering a variety of different possible routes. E) The internal design is based on a functional division of the main level of the building in two parts. The western wing is devoted to interpretation and education facilities, while the eastern wing is to catering, shopping, and administration. Functional specialization does not preclude flexibility of access to different kinds of activities, since the internal space is open and unified. F) Changes in the parking area are to a small extent since existing arrangements satisfy the needs of the proposed building. They consist of the redesign of the road. 3. The Functional Content of the Visitor Facilities The total internal area covered by our proposal rises to 1853.15 m2. The floor space in square meters covered by the different elements of the functional content of the visitor facilities is presented below. 3.1 Entrance – Reception: 124.50 3.2 Interpretation and Education: 779.70 Exhibition space: 429.20, Temporary exhibition: 262.40 Permanent exhibition: 166.80 Learning suite: 83.90 Internal events space: 266.60, 3.3 Retail: 144.10 3.3 Catering: 259.70, 3.4 Tourist information center: 137.90 ,3.5 Public support space: 177.55, 3.6 Non-public support space: 229.70, 3.7 Other external areas East plaza West plaza North yard Atrium café, 3.8 Access and transportation
2002 Ephemeral Structures in the City of Athens. International Architectural Competition / Cultural Olympiad 2001-2004/ Individual participation
TECHNICAL DESCRIPTION
Explanation of the structural system
The basic design principle and by extension the construction method of the urban recreation generator are based on a sequential assembly of structural elements that constitute individual units. These elements are sections of shaped sheet metal, of different thickness and type: perforated, galvanized, damier-aluminum, depending on their use. The assembly process provides the possibility of creating alternative structures, smaller or larger, depending on the type of recreational activity and the number of people participating in the events.
This particular parasite, as a structure, consists of three structural units: a) ramps and entrance level b) stage c) viewing levels. Each structural unit consists of structural elements. The modules and their structural elements can be, in different combinations, independent systems, depending on the needs of their adaptation to different free spaces within the city. The constructions resulting from the combinations of modules and elements are distinguished both for their static autonomy and their structural independence. On the other hand, they are components of the overall parasite, as presented in our proposal.
The basic proposal as it is depicted is the following:
a1+a+a2+a/b+b1+b2+c1a+c2b (left)+c1a+c2b (right) = 97.2 m2










1998 New building of the PedagogicalDepartment of the Democritus University of Thrace. Architectural European competition.
pedagogical departments of the democritus university of thrace in alexandroupoli
european architectural competition / 1998 / 4th prize
in the problem of the increased complexity of the university facilities a simple and readable organization is proposed. the core of all central actions and movements is the street axis and the square where all the faculty and students will meet every day, a place of social gathering. the main street organises on its western side the classrooms, the secretariats, the access to the offices and the research and training laboratories. on the east side, in conjunction with the square, it organises all the common functions of the two departments, such as special classrooms, a café, a large auditorium, a multi-purpose room, a cosmetics room and a library. it also develops towards the south into an open promenade, which leads to the university sports facilities. the main street is protected from the weather and changes its character from winter to summer thanks to its sides, which are designed in bioclimatic terms. finally, the smooth integration of the complex into the natural landscape offers the possibility of opening up to the view, to the south orientation and to be visually connected to the city.
design team: n. marda, th. fotiou
collaborators: th. psyKakos








































