A building complex of (3) residence units. Outside the boundaries of the traditional settlement of Stavri in the eastern Mani, Laconia. Study Architect: Theodoros Psykakos. Construction permit: 09/2011














LOCATION: “cliff” PLOT AREA E: 1553.20 M² COVERAGE: 108.700 M² STRUCTURE: 153.050 M² House A: 32.125 M² ground floor and 15.70 M² first floor and a total of 47.825 M² House B: 54.982 M² and a total of 40 M² ground floor 61,222 M² House C: 29,752 M² ground floor and 12,970 M² first floor and a total of 44,010 M²
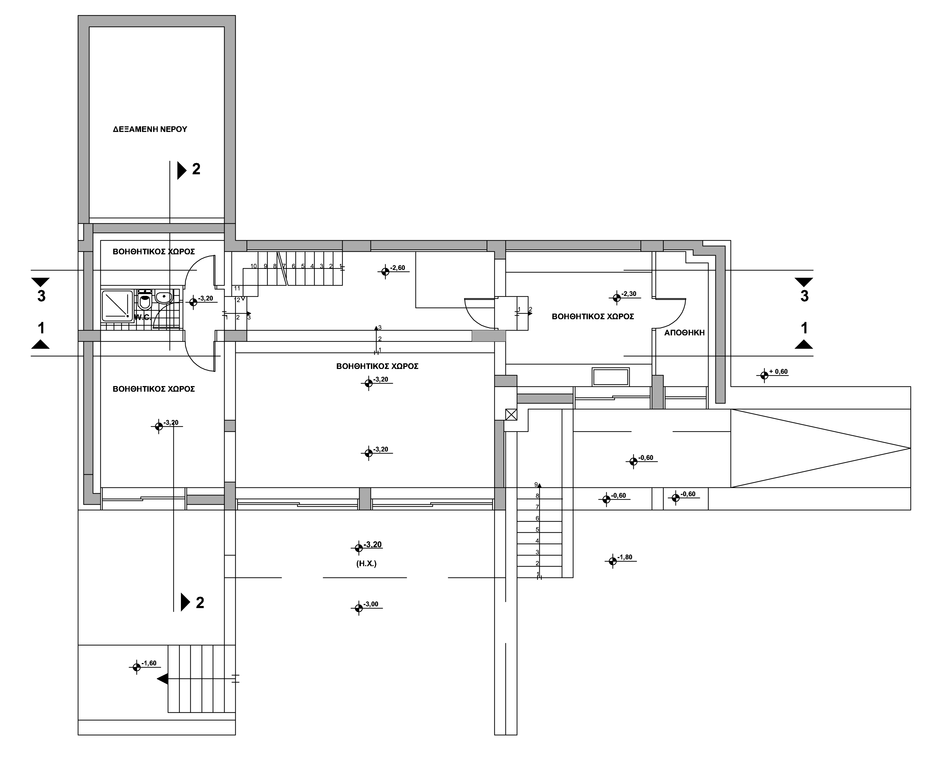
BUILDING PLAN SUMMARY Each part (unit A’B’C’) of the complex concerns a residence that is developed in levels. The residence includes a living room and bathroom on the ground floor, while the upper level includes a bedroom. The basement is structured into auxiliary spaces. Also, each residence has a separate underground space with a closed water collection tank in contact with it.
ANALYSIS OF THE BASIC PRINCIPLES OF COMPOSITION In this study the elements of the landscape, natural and artificial (see A3), constitute the elements of the composition. I mean the way in which the analemmatic drystone walls, which form the planting levels, can be reconstituted to form minimum habitation levels in a sloping field. The habitation can be organized on levels, corresponding to the artificial platforms, and divided into internal functional zones, taking advantage of the view towards the olive groves and the wider landscape. General Principles of Composition of the Complex – Architectural Proposal. The architectural design follows the following principles of composition: A. Smooth integration of the complex into the natural and cultural landscape, as well as the elevational curves, so that the complex opens to the view with (NE_ΑSEΝ) orientation. B. Organization of movements and residences around a path and a common open-air meeting place plateau so as to form a social core. C. Autonomy and coexistence of the three units in different flat areas, on either side of the path and the central outdoor space, a square, in order to achieve: Autonomy of the three houses in the living areas and coexistence in the common areas (square and ramp). The architectural proposal. The proposal deals with the above construction principles as follows: A. The smooth integration into the natural landscape is implemented by positioning the complex along the north-south axis and in that part of the plot where the slope allows for differentiation according to ‘height, i.e., placed in the highest area. Thus, access and basic movement to the modules and common areas follow the natural terrain in the traces of the original path with significant elevation differences. The north-south axis penetrates the main outdoor space and offers complex visual contact with the landscape and openness to good orientation and unobstructed views. B. The condensation of all movements and actions is realized by the creation of the path and the small square that form the backbone of the complex and gather the movements and positions in the complex. For the organization and morphology of the complex, I took into account the evolution of the archetypal forms of the area. C. The autonomy and co-existence of the three units is realized as follows: The residences are built autonomously with the individual spaces on three levels and with the structure of the residence on medium levels to better adapt to the strong slope of the ground. The inclusion of the building units in consecutive height platforms, or analemmas, the purpose of which is to ultimately organize the units around the central platform, or square.

2008 Final study for a new residential and commercial complex (36,500 m2) in the plot of the former manufacturing plant of “KYKNOS”, Nafplio Municipality, Argolida. Final Study Phase: Architects: Theano Fotiou, Maria Mandouvalou, Eleni Maistrou, Valentini Karvountzi, Konstantina Demiri, Maria Kafritsa, Dimitra Nikolaou. Associate Architects: T. Psykakos, V. Rizos, H. Makandasis, V. Lioliou, I. Hortogianni, S. Thravalou. Construction permit: 03/2009 Under construction.
2007 Preliminary study for a complex of residential and commercial premises (36,500 m²) on the plot of the former manufacturing plant of “KYKNOS” S.A., Nafplio Municipality, Argolida.
Pre-Study Phase: Theano Fotiou, Maria Madouvalou, Eleni Maistrou, Valentini Karvountzi, Theodoros Psykakos. Associate Architects: V. Rizos, V. Lioliou, A. Karavanas, N. Choli, I. Hortogianni, D. Samoureli, H. Makandasis.
2006 Final study for (2) two houses in Kranidi Municipality, Argolida. Study Architect: Th. Psykakos (3D group AIEN) Construction permit: 02/2007
Location: The plot is located in an off-plan area in the municipality of Kranidi in the area of Rachi Ag. Ioannis. a) The total area of the plot is 4028.00 m². b) The total coverage area of the project is 214.54 m². c) The total construction of the project is 200.44 m². d) The total volume of the project is 843.54 m³. The project includes building A with a total area of 100.23 m². Its semi-outdoor spaces have a surface of 20.52 m², and the basement is 80.10 m². Building B with a total area of 100.21m². Its semi-outdoor spaces have an area of 15.96 m², the basement is 95.55 m², and the total configuration of the surrounding area is 1800.00m² which includes the configuration of the access/entrance areas for each residence, the transition to and from the parking spaces, and the parking areas. The outdoor relaxation area for each building with a swimming pool is on a shaped plateau, supported by a pergola that unifies the outdoor space with the residence. As well as retaining walls for the slopes for the smooth gradation of the slope of the plot and the construction of stairs and ramps for the transition from level to level. The configuration of the facades combines a contemporary perception with openings that follow the internal function of the building with elements that refer to traditional stone constructions. Also, the adaptation of each building volume with the construction of a single-pitched roof and room follows the slope of the natural terrain so as to satisfy, as parts and as a whole, the best possible adaptation of the buildings to the natural terrain. Based on the dimensions and the harmonious distribution of the volumes of the buildings, two buildings emerge that ensure better living conditions and harmonious integration into the slope of the natural terrain as well as adaptation to the natural environment. Summarizing, it appears that the proposed solution of floor plans, volumes, and form of the buildings ensures the best living and intensifies in the wider environment.





























